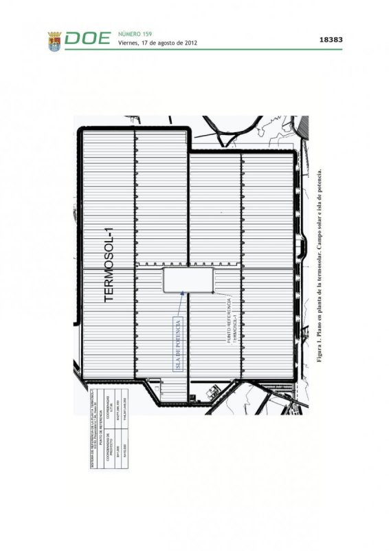
Termosol 1

Group

General Info

Owner/s: 

  • NextEra Energy

Technology: 

  • Parabolic trough

Country: 

  • Spain

Status: 

  • Operational

Purpose: 

  • Commercial

Usage: 

  • Electricity

Power: 

50.00 MW

Construction start date: 

March 2011

Start date: 

March, 2013

Location: 

Navalvillar de Pela, Badajoz

Generation: 

170.00 GWh

Land area: 

200 hectares
General comments:

Termosol 1 and Termosol 2 are twin plants 50 MW each. The same data displayed here is of application to Termosol 2.

Documents and links:
Images:
Termosol 1 power-block layout Termosol 1 solar field layout
Videos: